
Однонаправленная шиберно‐ножевая задвижка вафельного типа серии U предназначена для перекачки жидкостей с содержанием твердых частиц во взвешенном состоянии до 6%. Для подачи самотеком сухих твердых веществ рекомендуется устанавливать задвижку таким образом, чтобы стрелка на корпусе указывала в направлении, обратном направлению потока.
Особенности конструкции:
Однонаправленная шиберно‐ножевая задвижка "вафельного" типа.
Цельный корпус состоит из двух частей, скрепляемых болтами, с внутренними направляющими ножа для его беспрепятственного скольжения в процессе эксплуатации.
Высокая пропускная способность при низких перепадах давления.
Возможно использование различных материалов уплотнений и набивки сальника.
Стрелка на корпусе указывает направление потока.
Область применения:
целлюлозно‐бумажная промышленность;
горнодобывающая промышленность;
пищевая промышленность;
перекачивание сыпучих материалов;.
обработка сточных вод;
химические заводы.
Технические данные:
| Размеры | DN 50-DN 800 мм |
| Рабочее давление | от DN50 до DN125 давление 10 кг/см.кв |
| DN150 давление 8 кг/см.кв |
| DN200 давление 7 кг/см.кв |
| от DN250 до DN300 давление 5 кг/см.кв |
| от DN350 до DN400 давление 4 кг/см.кв |
| от DN450 до DN600 давление 3 кг/см.кв |
от DN700 до DN800 давление 2 кг/см.кв
|
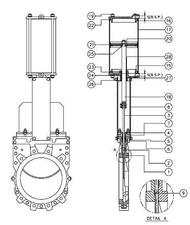
Применяемые материалы:
| Компонент | Исполнение из чугуна | Исполнение из нержавеющей стали |
| Поз.№ 1. Корпус | GG25 | CF8M |
| Поз.№ 2. Контр-корпус | GG25 | CF8M |
| Поз.№ 3. Нож | AISI304 | AISI316 |
| Поз.№ 4. Сальник | Алюминий | CF8M |
| Поз.№ 5. Набивка сальника | СИНТ. + ПТФЭ | СИНТ. + ПТФЭ |
| Поз.№ 6. Кольцевая прокладка | ЭПДМ | ЭПДМ |
| Поз.№ 7. Винт | F-111+ЦИНК | AISI316 |
| Поз.№ 8. Опорные пластины | СТАЛЬ | СТАЛЬ |
| Поз.№ 9. Ползунок | –– | НИЛОН |
| Поз.№10. Муфта | AISI316 | AISI316 |
| Поз.№11. Уплотнение | ЭПДМ | ЭПДМ |
| Поз.№12. Муфта | CF8M | CF8M |
| Поз.№13. Дефлектор | CA-15 | CA-15/ CF8M |
| Поз.№14. Уплотнение | BELPA DW | BELPA DW |
| Поз.№15. Крышка цилиндра | GG-45 | GG-45 |
| Поз.№16. Колпак цилиндра | GG-45 | GG-45 |
| Поз.№17. Обшивка | АЛЮМИНИЙ | АЛЮМИНИЙ |
| Поз.№18. Шток | AISI304 | AISI304 |
| Поз.№19. Гайка штока | СТАЛЬ+ЦИНК | СТАЛЬ+ЦИНК |
| Поз.№20. Шайба | СТАЛЬ | СТАЛЬ |
| Поз.№21. Поршень | СТАЛЬ+НИТРИЛ | СТАЛЬ+НИТРИЛ |
| Поз.№22. Кольцо | НИТРИЛ | НИТРИЛ |
| Поз.№23. Кольцо | НИТРИЛ | НИТРИЛ |
| Поз.№24. Кольцо | НИТРИЛ | НИТРИЛ |
| Поз.№25. Кольцо | НИТРИЛ | НИТРИЛ |
| Поз.№26. Скребок | СТАЛЬ+НИТРИЛ | СТАЛЬ+НИТРИЛ |
| Поз.№27. Направляющая муфта | НЕЙЛОН | НЕЙЛОН |
| Поз.№28. Кольцо | СТАЛЬ | СТАЛЬ
|
Варианты исполнения:
Технические данные.pdf